※ご入居を検討されているお客様向けの情報サイトです。
※駐車場単体・管理会社・テナントに関するお問合せにはお応えいたしかねます。

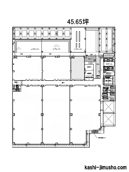
R&D研究開発ラボにおすすめのオフィス特集|研究・実験に適した機能性重視の賃貸オフィス(40~60坪)

本特集では、神奈川県内の研究開発や実験業務に適した高機能な賃貸オフィス物件を厳選掲載。天井高・電源容量・換気性能・床荷重など、R&D用途に求められる設備・仕様を備えた物件をご紹介しています。技術系企業や研究機関、スタートアップの開発拠点にも最適で、静かな環境とアクセスの良さを両立した立地が多数。

総数:0

    ご希望条件にあてはまる物件が存在しませんでした。
    お手数ですが、検索条件を変更して再度検索してください。

    またご質問やその他物件に関するお問合せは、
    フリーダイヤル 0120-33-9533 もしくは 問合せフォーム までお気軽にお問合せください。


    ※取引態様:媒介

    ※該当物件が見つからない場合は、以下のお問合せフォームよりお気軽にご相談ください。ご希望に合った物件をご提案いたします。

    ​​​​​​​

    「R&D研究開発ラボにおすすめのオフィス(40~60坪)」に関するお問合せ

    場所
    広さ 坪から
    費用面
    円~ 円の範囲
    その他のご要望
    貴社名 担当者名
    TEL (例)03-3516-1700 E-Mail

    当社の個人情報に関する弊社ガイドラインをご確認いただき、
    ご同意いただけたら、送信ボタンを押してください。