※ご入居を検討されているお客様向けの情報サイトです。
※駐車場単体・管理会社・テナントに関するお問合せにはお応えいたしかねます。

みなとみらい線沿線の(150~200坪)の貸事務所・賃貸オフィス一覧

総数:11棟(13件)
  • 1
BASE GATE横浜関内タワーの外観
物件番号:081140
更新日:2026/5/19
横浜市中区港町1-1-1
【竣工】2025/12
【階建て】地上33F 、地下1F
【最寄駅】
関内駅1分
日本大通り駅7分
【耐震】 新耐震+制震
【基準階】 673.00坪 【エントランス】
【駐車場】 有り 【エレベーター】 11基
「BASE GATE横浜関内タワー」は、2025年12月に竣工予定の最新鋭オフィスタワーです。地上33階・地下1階建て、基準階面積は約673坪と、横浜エリアでも最大級の規模を誇ります。ワンフロア・ワンテ…
図面 階数 面積 賃料(共益費込)
(坪単価)
保証金/敷金 礼金 入居可能日
16階 N 186.00坪
(614.88m2)
(未公開)
    賃料目安
  • 2.3 万以上~2.5 万円未満
12ヶ月 即日
17階 N 186.00坪
(614.88m2)
(未公開)
    賃料目安
  • 2.3 万以上~2.5 万円未満
12ヶ月 即日
18階 N 186.00坪
(614.88m2)
(未公開)
    賃料目安
  • 2.3 万以上~2.5 万円未満
12ヶ月 即日
みなとみらい学園ビルの外観
物件番号:083624
更新日:2026/4/23
横浜市西区高島1-2-15
【竣工】2016/7
【階建て】地上8F
【最寄駅】
新高島駅3分
高島町駅7分
横浜駅10分
【耐震】 新耐震
【基準階】 【エントランス】
【駐車場】 無し 【エレベーター】 1基
みなとみらい学園ビルは、神奈川県横浜市西区高島1-2-15に位置する地上8階建てのオフィスビルです。2016年7月に竣工し、SRC造で建てられています。新耐震基準に適合しており、安全性の高いオフィ…
図面 階数 面積 賃料(共益費込)
(坪単価)
保証金/敷金 礼金 入居可能日
2階 G 197.34坪
(652.37m2)
3,946,800
(20,000)
12ヶ月 相談
クイーンズタワーAの外観
物件番号:035334
更新日:2026/5/21
横浜市西区みなとみらい2-3-1
【竣工】1997/6
【階建て】地上36F 、地下5F
【最寄駅】
みなとみらい駅2分
桜木町駅10分
【耐震】 新耐震
【基準階】 475.53坪 【エントランス】 全日開放(制限有)
【駐車場】 有り 【エレベーター】 22基
クイーンズタワーAは、横浜市西区みなとみらい2丁目に位置する、大規模かつ高機能なインテリジェント賃貸オフィスビルです。横浜高速鉄道みなとみらい線「みなとみらい駅」と直結しており、徒歩2…
図面 階数 面積 賃料(共益費込)
(坪単価)
保証金/敷金 礼金 入居可能日
11階 N 162.29坪
(536.50m2)
(未公開)
    賃料目安
  • 2.3 万以上~2.5 万円未満
(未公開) 2026/9/1
横浜NTビルの外観
物件番号:038754
更新日:2026/5/20
横浜市西区平沼1-2-24
【竣工】1994/3
【階建て】地上7F 、地下1F
【最寄駅】
横浜駅6分
【耐震】 新耐震
【基準階】 313.44坪 【エントランス】 平日・土開放
【駐車場】 有り 【エレベーター】 3基
複数路線が利用可能で交通アクセス抜群です!ガラス・カーテンウォールの外観が印象的です!充実した設備環境で快適なオフィス空間です!
図面 階数 面積 賃料(共益費込)
(坪単価)
保証金/敷金 礼金 入居可能日
2階 N 200.60坪
(663.16m2)
(未公開)
    賃料目安
  • 1.2 万以上~1.4 万円未満
12ヶ月 即日
KDX横浜みなとみらいタワーの外観
物件番号:038913
更新日:2026/5/21
横浜市西区みなとみらい3-3-1
【竣工】1994/2
【階建て】地上34F 、地下2F
【最寄駅】
みなとみらい駅3分
桜木町駅7分
【耐震】 新耐震+制震
【基準階】 541.15坪 【エントランス】 全日開放(制限有)
【駐車場】 有り 【エレベーター】 18基
KDX横浜みなとみらいタワーは、横浜市西区みなとみらい3-3-1に位置する大型賃貸オフィスビルです。みなとみらい線「みなとみらい駅」まで徒歩3分と至近距離にあり、JR根岸線・ブルーライン「桜木…
図面 階数 面積 賃料(共益費込)
(坪単価)
保証金/敷金 礼金 入居可能日
図面
NEW8階 N 159.15坪
(526.12m2)
(未公開)
    賃料目安
  • 2.0 万以上~2.3 万円未満
12ヶ月 2026/6
中旬
横浜ランドマークタワーの外観
物件番号:035167
更新日:2026/5/21
横浜市西区みなとみらい2-2-1
【竣工】1993/7
【階建て】地上70F 、地下3F
【最寄駅】
桜木町駅5分
みなとみらい駅5分
【耐震】 新耐震+制震
【基準階】 803.20坪 【エントランス】 全日開放(制限有)
【駐車場】 有り 【エレベーター】 79基
横浜ランドマークタワーは、みなとみらい21のシンボルとして知られる、利便性と機能性を兼ね備えたハイグレードオフィスタワーです。横浜市西区みなとみらい2丁目に位置し、JR桜木町駅から徒歩5…
図面 階数 面積 賃料(共益費込)
(坪単価)
保証金/敷金 礼金 入居可能日
16階 N 167.18坪
(552.66m2)
(未公開)
    賃料目安
  • 2.5 万円以上
(未公開) 即日
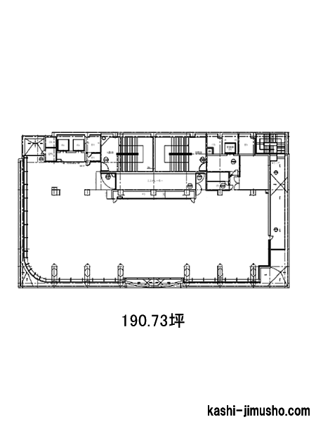
横浜山下町ビルの外観
物件番号:083881
更新日:2026/5/1
横浜市中区山下町36-1
【竣工】1993
【階建て】地上7F 、地下2F
【最寄駅】
元町・中華街駅1分
【耐震】 新耐震
【基準階】 【エントランス】
【駐車場】 - 【エレベーター】 3基
横浜マリンタワー・山下公園のすぐ近く!視認性ある角地です!1993年竣工、街並みに映える西洋風の綺麗な建物です!ワンフロア約200坪、開放的な室内空間です!
図面 階数 面積 賃料(共益費込)
(坪単価)
保証金/敷金 礼金 入居可能日
6階 G 190.73坪
(630.52m2)
(未公開)
    賃料目安
  • 1.0 万以上~1.2 万円未満
12ヶ月 即日
日総第5ビルの外観
物件番号:039746
更新日:2026/4/24
横浜市西区北幸2-10-39
【竣工】1987/7
【階建て】地上10F 、地下1F
【最寄駅】
横浜駅8分
【耐震】 新耐震
【基準階】 186.40坪 【エントランス】 全日開放(制限有)
【駐車場】 有り 【エレベーター】 2基
日総第5ビルは、神奈川県横浜市西区北幸に位置する地上10階・地下1階建てのオフィスビルです。1987年7月に竣工したこのビルは、鉄骨鉄筋コンクリート造(SRC造)で建設されており、新耐震基準を…
図面 階数 面積 賃料(共益費込)
(坪単価)
保証金/敷金 礼金 入居可能日
8階 G 165.76坪
(547.97m2)
(未公開)
    賃料目安
  • 1.6 万以上~2.0 万円未満
12ヶ月 2026/8
上旬
ニッセイ横浜尾上町ビルの外観
物件番号:038729
更新日:2026/5/18
横浜市中区尾上町6-81
【竣工】1980/12(改修:2003)
【階建て】地上8F 、地下1F
【最寄駅】
関内駅4分
馬車道駅5分
桜木町駅6分
【耐震】 旧耐震+補強済 or 基準OK
【基準階】 339.00坪 【エントランス】 平日のみ開放
【駐車場】 有り 【エレベーター】 4基
ニッセイ横浜尾上町ビルは、横浜市中区尾上町に位置する大型オフィスビルで、関内エリアの中でも存在感のある物件です。地上8階・地下1階建てのSRC造(鉄骨鉄筋コンクリート造)で建築され、1980…
図面 階数 面積 賃料(共益費込)
(坪単価)
保証金/敷金 礼金 入居可能日
5階 N 168.40坪
(556.69m2)
(未公開)
    賃料目安
  • 1.4 万以上~1.6 万円未満
12ヶ月 即日
日本生命横浜西口ビルの外観
物件番号:035482
更新日:2026/5/18
横浜市西区北幸1-11-7
【竣工】1973/12(改修:1999)
【階建て】地上8F 、地下2F
【最寄駅】
横浜駅4分
【耐震】 旧耐震+補強済 or 基準OK
【基準階】 155.85坪 【エントランス】 全日開放(制限有)
【駐車場】 有り 【エレベーター】 2基
日本生命横浜西口ビルは、神奈川県横浜市西区北幸に位置する地上8階・地下2階建てのオフィスビルです。1973年12月に竣工したこのビルは、鉄骨鉄筋コンクリート造(SRC造)で建設されており、堅牢…
図面 階数 面積 賃料(共益費込)
(坪単価)
保証金/敷金 礼金 入居可能日
3階 N 152.66坪
(504.66m2)
(未公開)
    賃料目安
  • 2.0 万以上~2.3 万円未満
12ヶ月 即日
KRCビルの外観
物件番号:035383
更新日:2026/4/30
横浜市中区日本大通18
【竣工】1973/10
【階建て】地上9F 、地下2F
【最寄駅】
日本大通り駅3分
関内駅8分
【耐震】 旧耐震+補強済 or 基準OK
【基準階】 326.24坪 【エントランス】 平日・土開放
【駐車場】 有り 【エレベーター】 4基
KRCビルは、神奈川県横浜市中区日本大通18に位置する、広々としたオフィス空間と充実した設備を備えたオフィスビルです。横浜市の中心部である日本大通エリアに立地し、みなとみらい線「日本大通…
図面 階数 面積 賃料(共益費込)
(坪単価)
保証金/敷金 礼金 入居可能日
7階 G 190.00坪
(628.10m2)
(未公開)
    賃料目安
  • 1.6 万以上~2.0 万円未満
12ヶ月 相談

非公開物件の賃料目安アイコン

  • 8,000 円未満
  • 8,000 円以上~1.0 万円未満
  • 1.0 万以上~1.2 万円未満
  • 1.2 万以上~1.4 万円未満
  • 1.4 万以上~1.6 万円未満
  • 1.6 万以上~2.0 万円未満
  • 2.0 万以上~2.3 万円未満
  • 2.3 万以上~2.5 万円未満
  • 2.5 万円以上
  • 未定

※取引態様:媒介
※フロア図面と現況が異なる場合は現況を優先いたします。
※貸室内部の写真・貸室からの景色に関しては、現在の募集フロアと異なる場合がございます。

総数:11棟(13件)
  • 1

(横浜)の賃料相場

(横浜)エリアの平均賃料

で募集している物件の、1坪あたりの賃料(共益費を含む)の平均価格です。
数値の右側にある矢印は、一週間前の数値と比較した結果を表しています。
賃料価格は毎日集計をしている最新の値です。

  • 2040 未調査
  • 4060 未調査
  • 60100 未調査
  • 100坪以上 未調査

(横浜)エリアの募集賃料

の1坪あたりの賃料(共益費を含む)価格帯ごとの募集物件数です。
表の数値をクリックすると募集物件の一覧表が表示します。

【2026/05/25更新】

エリアが指定されていません。
募集賃料(円)6千未満0.6~0.8万0.8~1.0万1.0~1.2万1.2~1.4万1.4~1.6万1.6~1.8万1.8~2.0万2.0万以上