横浜市西区浅間町(横浜駅周辺)の貸事務所・賃貸オフィス一覧
【2026/05/03更新】
横浜市西区浅間町(横浜駅周辺)の貸事務所について
横浜市西区浅間町の周辺物件情報です。
横浜市西区浅間町(横浜駅周辺)の物件は、8棟(12件) 掲載されています。
横浜市西区浅間町周辺の貸事務所マップ
横浜市西区浅間町周辺マップです。物件のある位置にビルが表示されていますので、クリックして詳細情報をご覧ください。
ビルアイコンについて
マップ上に表示されているビルアイコンは、そのビルの最小坪単価に応じて色分けされています。
8,000 円未満
8,000 円以上~1.0 万円未満
1.0 万以上~1.2 万円未満
1.2 万以上~1.4 万円未満
1.4 万以上~1.6 万円未満
1.6 万以上~2.0 万円未満
2.0 万以上~2.3 万円未満
2.3 万以上~2.5 万円未満
2.5 万円以上
未定
横浜市西区浅間町周辺の地区を探す
横浜市西区浅間町周辺の貸事務所一覧
物件番号:079929
更新日:2026/4/16
横浜市西区浅間町4-335-1
【竣工】1998/6
【階建て】地上6F
|
【最寄駅】
|
【耐震】 |
新耐震 |
| 【基準階】 |
|
【エントランス】 |
|
| 【駐車場】 |
- |
【エレベーター】 |
未調査 |
「ラ・ビスタ パークハウス」は、神奈川県横浜市西区浅間町4丁目に位置する、地上6階建てのビルです。1998年6月に竣工し、鉄筋コンクリート造(RC造)で建てられています。新耐震基準に適合して…

| 図面 |
階数 |
面積 |
賃料(共益費込) (坪単価) |
保証金/敷金 |
礼金 |
入居可能日 |
|
|
1階 |
G 18.79坪 (62.10m2) |
280,350 (14,920) |
6ヶ月 |
無 |
即日 |
|
物件番号:042149
更新日:2026/4/14
横浜市西区浅間町1-13-8
【竣工】1993/3
【階建て】地上8F 、地下1F
|
【最寄駅】
|
【耐震】 |
新耐震 |
| 【基準階】 |
52.31坪 |
【エントランス】 |
平日・土開放 |
| 【駐車場】 |
有り |
【エレベーター】 |
1基 |
共益ビルは、横浜市西区浅間町1丁目に位置し、新横浜通り(県道13号線横浜生田線)という幹線道路沿いに立つ重厚感あふれる賃貸オフィスビルです。横浜駅西口から徒歩約10分の好立地であり、周囲…

| 図面 |
階数 |
面積 |
賃料(共益費込) (坪単価) |
保証金/敷金 |
礼金 |
入居可能日 |
|
|
5階 |
G 51.91坪 (171.60m2) |
596,964 (11,500) |
8ヶ月 |
無 |
2026/6/1 |
|
|
6階 |
G 52.31坪 (172.93m2) |
601,565 (11,500) |
8ヶ月 |
無 |
即日 |
|
物件番号:038820
更新日:2026/4/24
横浜市西区浅間町1-6-10
【竣工】1992/12
【階建て】地上8F
|
【最寄駅】
|
【耐震】 |
新耐震 |
| 【基準階】 |
47.00坪 |
【エントランス】 |
全日開放(制限有) |
| 【駐車場】 |
有り |
【エレベーター】 |
1基 |
小金井第2ビルは、神奈川県横浜市西区浅間町1丁目に位置する、地上8階建てのオフィスビルです。1992年12月に竣工したこのビルは、耐震性に優れた新耐震基準を採用しており、地震に対する高い安全…

| 図面 |
階数 |
面積 |
賃料(共益費込) (坪単価) |
保証金/敷金 |
礼金 |
入居可能日 |
|
|
2階 |
G 47.00坪 (155.37m2) |
517,000 (11,000) |
10ヶ月 |
無 |
即日 |
|
物件番号:042959
更新日:2026/4/16
横浜市西区浅間町1-6-11
【竣工】1992/10
【階建て】地上7F
|
【最寄駅】
|
【耐震】 |
新耐震 |
| 【基準階】 |
22.90坪 |
【エントランス】 |
全日開放(制限有) |
| 【駐車場】 |
無し |
【エレベーター】 |
1基 |
サンシャイン井上ビルは、神奈川県横浜市西区浅間町1丁目6番11号に位置する、地上7階建てのオフィスビルです。1992年10月に竣工し、鉄骨造(S造)で建てられており、新耐震基準に適合しています…

| 図面 |
階数 |
面積 |
賃料(共益費込) (坪単価) |
保証金/敷金 |
礼金 |
入居可能日 |
|
|
5階 |
G 22.90坪 (75.70m2) |
286,250 (12,500) |
6ヶ月 |
1.0ヶ月 |
即日 |
|
物件番号:040223
更新日:2026/4/23
横浜市西区浅間町1-4-3
【竣工】1991/8
【階建て】地上8F
|
【最寄駅】
|
【耐震】 |
新耐震 |
| 【基準階】 |
48.84坪 |
【エントランス】 |
平日のみ開放 |
| 【駐車場】 |
無し |
【エレベーター】 |
1基 |
ウィザードは、神奈川県横浜市西区浅間町1丁目4番3号に位置する地上8階建てのオフィスビルです。1991年8月に竣工しており、構造は鉄骨鉄筋コンクリート造(SRC造)で、新耐震基準に適合していま…

| 図面 |
階数 |
面積 |
賃料(共益費込) (坪単価) |
保証金/敷金 |
礼金 |
入居可能日 |
|
|
3階 |
G 16.15坪 (53.40m2) |
180,000 (11,145) |
600,000 (37,152) |
1.0ヶ月 |
相談 |
|
|
3階 |
G 16.48坪 (54.50m2) |
183,000 (11,104) |
600,000 (36,408) |
1.0ヶ月 |
即日 |
|
|
6階 |
G 16.21坪 (53.58m2) |
180,000 (11,104) |
600,000 (37,014) |
1.0ヶ月 |
即日 |
|
物件番号:052550
更新日:2026/4/23
横浜市西区浅間町1-7-6
【竣工】1991/4
【階建て】地上6F
|
【最寄駅】
|
【耐震】 |
新耐震 |
| 【基準階】 |
70.00坪 |
【エントランス】 |
全日開放(24h) |
| 【駐車場】 |
有り |
【エレベーター】 |
1基 |
小金井第1ビルは、1991年4月に竣工した地上6階建てのオフィスビルで、構造は鉄筋コンクリート造(RC造)です。新耐震基準に適合しており、震災等への備えがなされた安全性の高い建物です。最寄り…

| 図面 |
階数 |
面積 |
賃料(共益費込) (坪単価) |
保証金/敷金 |
礼金 |
入居可能日 |
|
|
2階 |
G 16.68坪 (55.14m2) |
166,800 (10,000) |
5ヶ月 |
無 |
即日 |
|
|
4階 |
G 20.30坪 (67.11m2) |
200,000 (9,852) |
5ヶ月 |
無 |
即日 |
|
物件番号:048737
更新日:2026/4/24
横浜市西区浅間町2-95-3
【竣工】1987/12
【階建て】地上5F
|
【最寄駅】
|
【耐震】 |
新耐震 |
| 【基準階】 |
55.98坪 |
【エントランス】 |
|
| 【駐車場】 |
有り |
【エレベーター】 |
1基 |
複数路線が利用可能で交通アクセス良好です。管理の行き届いた清潔感のあるエントランスです。シンプルな形状でレイアウトのしやすい貸室です。

| 図面 |
階数 |
面積 |
賃料(共益費込) (坪単価) |
保証金/敷金 |
礼金 |
入居可能日 |
|
|
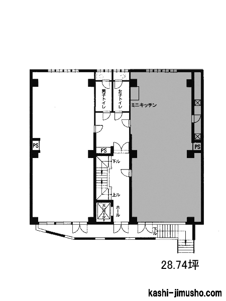
2階 |
G 28.74坪 (95.00m2) |
254,000 (8,838) |
6ヶ月 |
無 |
相談 |
|
物件番号:062213
更新日:2026/4/28
横浜市西区浅間町1-15-1
【竣工】1986/11
【階建て】地上4F
|
【最寄駅】
|
【耐震】 |
新耐震 |
| 【基準階】 |
102.37坪 |
【エントランス】 |
全日開放(24h) |
| 【駐車場】 |
有り |
【エレベーター】 |
無 |
YKビルは、神奈川県横浜市西区浅間町に位置するオフィスビルで、機能性と広々としたスペースが特徴です。所在地は浅間町1-15-1で、相鉄線の平沼橋駅から徒歩8分、横浜駅から徒歩12分の距離にあり…

| 図面 |
階数 |
面積 |
賃料(共益費込) (坪単価) |
保証金/敷金 |
礼金 |
入居可能日 |
|
|
2階 |
G 102.37坪 (338.43m2) |
1,000,000 (9,768) |
6ヶ月 |
1.0ヶ月 |
即日 |
|
非公開物件の賃料目安アイコン
8,000 円未満
8,000 円以上~1.0 万円未満
1.0 万以上~1.2 万円未満
1.2 万以上~1.4 万円未満
1.4 万以上~1.6 万円未満
1.6 万以上~2.0 万円未満
2.0 万以上~2.3 万円未満
2.3 万以上~2.5 万円未満
2.5 万円以上
未定
※取引態様:媒介
※フロア図面と現況が異なる場合は現況を優先いたします。
※貸室内部の写真・貸室からの景色に関しては、現在の募集フロアと異なる場合がございます。