横浜市港北区篠原町(新横浜)の貸事務所・賃貸オフィス一覧
【2026/05/12更新】横浜市港北区篠原町(新横浜)の貸事務所について
横浜市港北区篠原町の周辺物件情報です。
横浜市港北区篠原町(新横浜)の物件は、0棟(0件) 掲載されています。 お探しの住所では現在、物件がございません。近隣エリアの物件を掲載しています。
横浜市港北区篠原町周辺の貸事務所マップ
横浜市港北区篠原町周辺マップです。物件のある位置にビルが表示されていますので、クリックして詳細情報をご覧ください。
ビルアイコンについて
マップ上に表示されているビルアイコンは、そのビルの最小坪単価に応じて色分けされています。
- 8,000 円未満
- 8,000 円以上~1.0 万円未満
- 1.0 万以上~1.2 万円未満
- 1.2 万以上~1.4 万円未満
- 1.4 万以上~1.6 万円未満
- 1.6 万以上~2.0 万円未満
- 2.0 万以上~2.3 万円未満
- 2.3 万以上~2.5 万円未満
- 2.5 万円以上
- 未定
横浜市港北区篠原町周辺の地区を探す
横浜市港北区篠原町周辺の貸事務所一覧
総数:5棟(12件)
- 1
| 図面 | 階数 | 面積 | 賃料(共益費込) (坪単価) |
保証金/敷金 | 礼金 | 入居可能日 | |
|---|---|---|---|---|---|---|---|
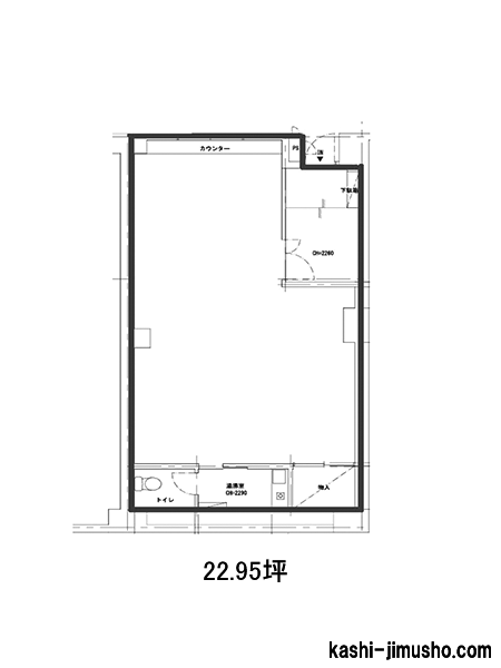
| 3階 | G 69.70坪 (230.41m2) |
627,300 (9,000) |
5ヶ月 | 1.0ヶ月 | 相談 |
|
| 図面 | 階数 | 面積 | 賃料(共益費込) (坪単価) |
保証金/敷金 | 礼金 | 入居可能日 | |
|---|---|---|---|---|---|---|---|
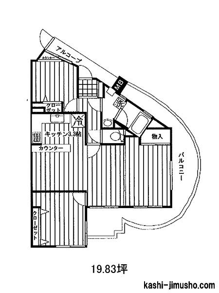
| 1階 | G 54.62坪 (180.58m2) |
660,000 (12,083) |
6ヶ月 | 1.0ヶ月 | 相談 |
|
物件番号:039078
更新日:2026/4/21
横浜市港北区新横浜1-2-1
【竣工】1992/3
【階建て】地上9F 、地下2F
【最寄駅】
|
【耐震】 | 新耐震 | ||
|---|---|---|---|---|
| 【基準階】 | 219.66坪 | 【エントランス】 | 平日・土開放 | |
| 【駐車場】 | - | 【エレベーター】 | 3基 |
新横浜エリア。駐車場完備の大型賃貸オフィスビル。新横浜ファーストビルは、横浜市港北区新横浜1丁目、JR横浜線・東海道新幹線の新横浜駅より徒歩11分圏内、横浜市営地下鉄ブルーライン線の新横…

| 図面 | 階数 | 面積 | 賃料(共益費込) (坪単価) |
保証金/敷金 | 礼金 | 入居可能日 | |
|---|---|---|---|---|---|---|---|
| 3階 | N 60.08坪 (198.61m2) |
(未公開)
|
10ヶ月 | 無 | 相談 |
|
|
| 3階 | N 93.98坪 (310.68m2) |
(未公開)
|
10ヶ月 | 無 | 即日 |
|
|
| 4階 | N 224.41坪 (741.85m2) |
(未公開)
|
10ヶ月 | 無 | 即日 |
|
|
| 5階 | N 224.41坪 (741.85m2) |
(未公開)
|
10ヶ月 | 無 | 即日 |
|
|
| 6階 | N 181.86坪 (601.19m2) |
(未公開)
|
10ヶ月 | 無 | 相談 |
|
全5件を確認する
表示フロアを閉じる
※取引態様:媒介
※フロア図面と現況が異なる場合は現況を優先いたします。
※貸室内部の写真・貸室からの景色に関しては、現在の募集フロアと異なる場合がございます。
総数:5棟(12件)
- 1




