横浜市中区住吉町(60~80坪 関内駅周辺)の貸事務所・賃貸オフィス一覧
【2026/04/26更新】
横浜市中区住吉町(関内駅周辺)の貸事務所について
横浜市中区住吉町の周辺物件情報です。
横浜市中区住吉町(関内駅周辺)の物件は、3棟(4件) 掲載されています。
お探しの住所では現在、物件がございません。近隣エリアの物件を掲載しています。
横浜市中区住吉町周辺の貸事務所マップ
横浜市中区住吉町周辺マップです。物件のある位置にビルが表示されていますので、クリックして詳細情報をご覧ください。
ビルアイコンについて
マップ上に表示されているビルアイコンは、そのビルの最小坪単価に応じて色分けされています。
8,000 円未満
8,000 円以上~1.0 万円未満
1.0 万以上~1.2 万円未満
1.2 万以上~1.4 万円未満
1.4 万以上~1.6 万円未満
1.6 万以上~2.0 万円未満
2.0 万以上~2.3 万円未満
2.3 万以上~2.5 万円未満
2.5 万円以上
未定
横浜市中区住吉町周辺の地区を探す
横浜市中区住吉町周辺の貸事務所一覧
物件番号:071882
更新日:2026/4/20
横浜市中区太田町1-7-1
【竣工】2019/10
【階建て】地上8F
|
【最寄駅】
|
【耐震】 |
新耐震 |
| 【基準階】 |
62.63坪 |
【エントランス】 |
全日開放(制限有) |
| 【駐車場】 |
- |
【エレベーター】 |
1基 |
横浜日光ビルは、横浜市中区太田町に位置するスタイリッシュな賃貸オフィスビルで、2019年に竣工した比較的新しい建物です。鉄骨造の地上8階建てで、新耐震基準を満たしており、安心して長期的に…

| 図面 |
階数 |
面積 |
賃料(共益費込) (坪単価) |
保証金/敷金 |
礼金 |
入居可能日 |
|
|
4階 |
G 61.37坪 (202.88m2) |
920,550 (15,000) |
12ヶ月 |
無 |
即日 |
|
物件番号:039747
更新日:2026/4/10
横浜市中区太田町4-55
【竣工】1988/3
【階建て】地上9F 、地下1F
|
【最寄駅】
|
【耐震】 |
新耐震 |
| 【基準階】 |
242.69坪 |
【エントランス】 |
全日開放(制限有) |
| 【駐車場】 |
- |
【エレベーター】 |
3基 |
神奈川県横浜市中区太田町にある「横浜馬車道ビル」は、関内・馬車道エリアの中心に位置する大型オフィスビルで、みなとみらい線の馬車道駅から徒歩わずか2分という非常に優れた立地条件を誇りま…

| 図面 |
階数 |
面積 |
賃料(共益費込) (坪単価) |
保証金/敷金 |
礼金 |
入居可能日 |
|
|
3階 |
G 71.62坪 (236.76m2) |
|
12ヶ月 |
無 |
即日 |
|
物件番号:035519
更新日:2026/4/21
横浜市中区日本大通60
【竣工】1978/6
【階建て】地上9F 、地下1F
|
【最寄駅】
|
【耐震】 |
旧耐震+補強済 or 基準OK |
| 【基準階】 |
176.52坪 |
【エントランス】 |
平日・土開放 |
| 【駐車場】 |
- |
【エレベーター】 |
2基 |
朝日生命横浜ビルは、神奈川県横浜市中区日本大通60に位置する、利便性と信頼性を兼ね備えたオフィスビルです。このビルは、横浜のビジネスエリアの中心地にあり、みなとみらい線「日本大通り駅…

| 図面 |
階数 |
面積 |
賃料(共益費込) (坪単価) |
保証金/敷金 |
礼金 |
入居可能日 |
|
|
7階 |
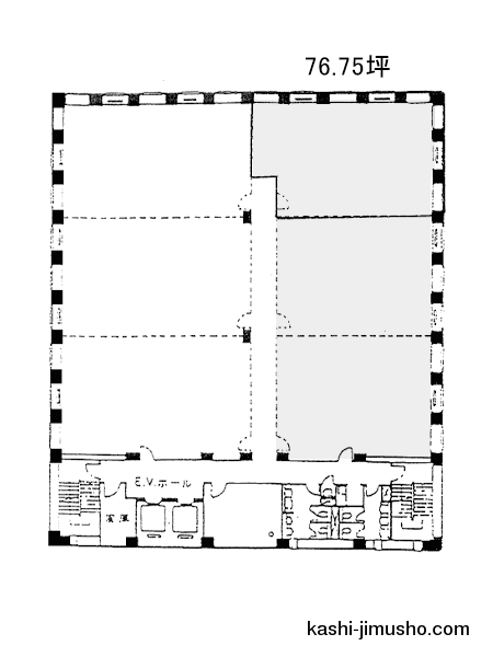
N 76.75坪 (253.72m2) |
|
(未公開) |
無 |
2026/10 |
|
物件番号:035343
更新日:2026/4/1
横浜市中区尾上町4-57
【竣工】1971/6(改修:2008)
【階建て】地上11F 、地下2F
|
【最寄駅】
|
【耐震】 |
旧耐震+補強済 or 基準OK |
| 【基準階】 |
171.12坪 |
【エントランス】 |
全日開放(制限有) |
| 【駐車場】 |
- |
【エレベーター】 |
2基 |
馬車道交差点の角ビル!存在感のある大型オフィスです!豪華なエントランスが来訪者をお迎えします!充実した設備環境で快適なオフィス空間です!

| 図面 |
階数 |
面積 |
賃料(共益費込) (坪単価) |
保証金/敷金 |
礼金 |
入居可能日 |
|
|
B1階 |
N 63.50坪 (209.92m2) |
|
12ヶ月 |
無 |
2026/5 予定 |
|
物件番号:035341
更新日:2026/4/16
横浜市中区尾上町3-46
【竣工】1969/2
【階建て】地上8F 、地下1F
|
【最寄駅】
|
【耐震】 |
旧耐震+補強済 or 基準OK |
| 【基準階】 |
62.00坪 |
【エントランス】 |
全日開放(制限有) |
| 【駐車場】 |
- |
【エレベーター】 |
1基 |
木村ビルは、神奈川県横浜市中区尾上町3-46に位置する、利便性と機能性を兼ね備えたオフィスビルです。1969年2月に竣工したこの建物は、地上8階・地下1階建ての鉄筋コンクリート造(RC造)で、堅…

| 図面 |
階数 |
面積 |
賃料(共益費込) (坪単価) |
保証金/敷金 |
礼金 |
入居可能日 |
|
|
3階 |
G 66.91坪 (221.19m2) |
802,920 (12,000) |
6ヶ月 |
1.0ヶ月 |
即日 |
|
非公開物件の賃料目安アイコン
8,000 円未満
8,000 円以上~1.0 万円未満
1.0 万以上~1.2 万円未満
1.2 万以上~1.4 万円未満
1.4 万以上~1.6 万円未満
1.6 万以上~2.0 万円未満
2.0 万以上~2.3 万円未満
2.3 万以上~2.5 万円未満
2.5 万円以上
未定
※取引態様:媒介
※フロア図面と現況が異なる場合は現況を優先いたします。
※貸室内部の写真・貸室からの景色に関しては、現在の募集フロアと異なる場合がございます。