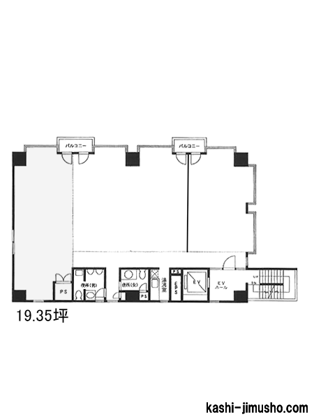
関内駅周辺の(40坪以下)の貸事務所・賃貸オフィス一覧

官公庁とビジネスが集まる関内駅エリア
関内駅エリアは、横浜市中区の行政・ビジネスの中心地として知られ、横浜市役所や関内ホール、横浜スタジアムといった主要施設が集まるエリアです。JR根岸線と横浜市営地下鉄ブルーラインが交差し、交通利便性も高く、県内外からのアクセスに優れています。周辺には中小規模のオフィスビルが多数立地し、士業・IT系・コンサル業など幅広い業種に適した物件が揃います。落ち着いた街並みと行政機関の近さから、信頼感を重視する企業にも人気。ビジネスの拠点として安定したニーズを誇るエリアです。
このページでは、そんな関内駅周辺エリアの40坪以下の貸事務所を表示しています。
関内駅周辺(横浜)の賃料相場
関内駅周辺(横浜)エリアの平均賃料
関内駅周辺で募集している物件の、1坪あたりの賃料(共益費を含む)の平均価格です。
数値の右側にある矢印は、一週間前の数値と比較した結果を表しています。
賃料価格は毎日集計をしている最新の値です。
- 20~40坪 12,986円前後
- 40~60坪 12,360円前後
- 60~100坪 13,038円前後
- 100坪以上 21,764円前後
関内駅周辺(横浜)エリアの募集賃料
関内駅周辺の1坪あたりの賃料(共益費を含む)価格帯ごとの募集物件数です。
表の数値をクリックすると募集物件の一覧表が表示します。
【2026/05/24更新】
関内駅周辺エリアのオフィス環境
関内駅周辺の街並み
関内駅周辺エリアは、横浜市の中心部に位置し、行政・ビジネス・文化が融合したエリアとして発展しています。JR根岸線・横浜市営地下鉄ブルーラインが利用でき、横浜駅やみなとみらいエリア、東京都心へのアクセスも良好です。
このエリアは、横浜市役所や神奈川県庁、裁判所などの官公庁が集まり、行政機関との取引が多い企業や士業のオフィスに適した環境が整っています。また、金融機関や大手企業の支店も多く、ビジネス拠点としての利便性が高いエリアです。
関内駅周辺には、「横浜スタジアム」や「伊勢佐木町商店街」などのランドマークもあり、オフィス街でありながら、飲食店やカフェが充実している点も魅力です。さらに、歴史的な建物を活かしたリノベーションオフィスや、スタートアップ向けのコワーキングスペースも増えており、新しい働き方にも対応した環境が整っています。
比較的リーズナブルな賃料のオフィスも多く、コストパフォーマンスの良いエリアとしても人気があります。伝統と革新が共存する関内駅周辺エリアで、あなたのビジネスに最適なオフィスを見つけてみませんか?