
クレシェンドビル 新横浜の賃貸情報
物件番号:39539
住所
横浜市港北区新横浜2-3-4クレシェンドビルの募集中物件リスト
| 図面 | 階数 | 面積 | 賃料(共益費込) (坪単価) |
保証金/敷金 | 礼金 | 入居可能日 |
|---|---|---|---|---|---|---|
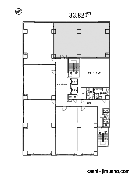
| 3階 |
G 40.10坪 (132.56m2) |
(未公開)
|
12ヶ月 | 無 | 2026/7/1 |
- ※取引態様:媒介
- ※フロア図面と現況が異なる場合は現況を優先いたします。
- ※貸室内部の写真・貸室からの景色に関しては、現在の募集フロアと異なる場合がございます。
- ※保証金/敷金以外の費用については別途消費税が必要になります。
- ※各物件により、別途費用が必要な場合には、物件紹介時又は重要事項説明においてご説明いたします。
- ※面積の箇所に表示している N はネット契約(契約面積はオフィス専用部分のみ)、G はグロス契約(契約面積は共用部分を加えた面積)を表しています。
クレシェンドビルの設備概要※-は確認中の表記になります。
| 竣工 | 1987年 | 構造・階建て | SRC造 地上9階 地下1階 |
|---|---|---|---|
| 耐震 | 新耐震 | 基準階面積 | 152.56坪 |
| エレベーター | 2基 | 駐車場 | 有 |
| ビル使用時間 | 24時間使用可 | エントランス | 全日開放(制限有) |
| セキュリティ | 機械 | 光ファイバー | MDF |
| 契約種別 | 普通借家契約 | 建替え予定 | - |
| 保証契約 | - |
新横浜2丁目のハイグレード賃貸オフィスビル!

桑澤 修
クレシェンドビルは、横浜市港北区新横浜に位置する重厚感あふれるハイグレードオフィスビルです。落ち着いた街並みに調和するよう設計された本物件は、存在感のある外観が特徴で、御影石を用いたファサードが高級感と堅牢さを演出しています。エントランスホールには大理石が贅沢に使用されており、吹き抜け空間が開放感と上質な雰囲気を漂わせ、訪れる人々に上品な印象を与えます。建物は地上9階・地下1階建ての鉄骨鉄筋コンクリート造で、1987年の竣工以来、堅牢な構造と安定した管理体制により、高い信頼性を維持しています。新耐震基準を満たしており、安全性にも配慮された物件です。エレベーターは乗用11人乗りを2基設置しており、スムーズな上下移動が可能です。1フロアあたり約152坪の広々とした貸室空間は、整形でレイアウトしやすく、床荷重は300kg/㎡、電源容量は40VA/㎡を確保。業種を問わず多様なビジネスニーズに対応できる仕様となっています。空調はセントラル空調方式を採用し、OAフロア・光ファイバーも導入済。各フロアには給湯室や室外男女別トイレを備えており、快適かつ機能的な執務空間を実現しています。セキュリティ面では機械警備を採用しており、24時間体制で利用が可能。エントランスは全日開放され、開放時間は7:00~20:00と利便性も高く、柔軟な働き方にも対応しています。加えて、30台収容可能な機械式駐車場(タワーパーキング)を完備しており、車での通勤や来客対応にも優れた環境が整っています。街路樹が整備されたアリーナ通りに面しており、視認性と落ち着いた環境を兼ね備えた立地です。ビジネス拠点としての利便性と快適性を両立する、質の高いオフィスビルといえるでしょう。
【周辺ガイド】
クレシェンドビルが位置する新横浜エリアは、横浜市の中でもビジネスと文化が融合する活気ある街として知られています。周辺には大型オフィスビルや商業施設が多く立ち並び、日々多くのビジネスパーソンや来訪者が行き交うエリアです。近隣には「横浜アリーナ」や「新横浜プリンスホテル」などのランドマークがあり、イベントや展示会が頻繁に開催されているため、企業活動の発信拠点としても非常に魅力的な環境です。また、エリア一帯は歩道が整備されており、街路樹が並ぶ通り沿いには飲食店やカフェ、コンビニエンスストア、銀行、郵便局などが点在しています。ランチやちょっとした休憩に便利な施設が豊富で、働く人々にとって日常の利便性が高い点も特徴です。さらに、オフィスビル周辺にはビジネスホテルも充実しており、遠方からの出張者を迎える環境としても適しています。整然とした街並みと清潔感のある雰囲気が共存し、都市型ビジネス街として成熟した新横浜は、企業の拠点としてふさわしい環境が整っています。ビルの正面に広がるアリーナ通りは交通量もありながら整備が行き届いており、歩行者にとっても安全で快適な通勤環境が保たれています。こうしたバランスの取れた都市インフラが整った新横浜は、多様な業種の企業に支持される人気のビジネスエリアとなっています。
【評価】4.5
| 駅からの距離 | 設備 | 耐震性 | エントランス |
|---|
クレシェンドビルの周辺地図
「クレシェンドビル」に関するお問合せ
![]() |
|
| このページのURL | https://yokohama.kashi-jimusho.com/detail/39539/ |
|---|---|
株式会社サンエスコーポレーション |
|
| 〒103-0027 東京都中央区日本橋2-2-21 日本橋二丁目ビル5階 | |





































