
新横浜ファーストビル 新横浜の賃貸情報
物件番号:39078
住所
横浜市港北区新横浜1-2-1新横浜ファーストビルの募集中物件リスト
| 図面 | 階数 | 面積 | 賃料(共益費込) (坪単価) |
保証金/敷金 | 礼金 | 入居可能日 |
|---|---|---|---|---|---|---|
| 3階 |
N 60.08坪 (198.61m2) |
(未公開)
|
10ヶ月 | 無 | 相談 | |
| 3階 |
N 93.98坪 (310.68m2) |
(未公開)
|
10ヶ月 | 無 | 即日 | |
| 4階 |
N 224.41坪 (741.85m2) |
(未公開)
|
10ヶ月 | 無 | 即日 | |
| 5階 |
N 224.41坪 (741.85m2) |
(未公開)
|
10ヶ月 | 無 | 即日 | |
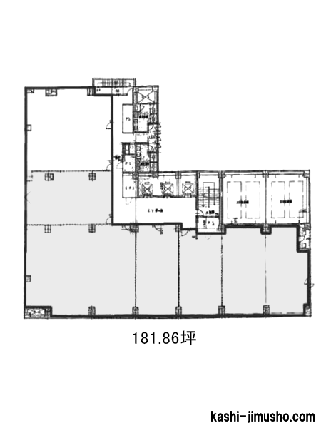
| 6階 |
N 181.86坪 (601.19m2) |
(未公開)
|
10ヶ月 | 無 | 相談 |
全5件を確認する
表示フロアを閉じる
- ※取引態様:媒介
- ※フロア図面と現況が異なる場合は現況を優先いたします。
- ※貸室内部の写真・貸室からの景色に関しては、現在の募集フロアと異なる場合がございます。
- ※保証金/敷金以外の費用については別途消費税が必要になります。
- ※各物件により、別途費用が必要な場合には、物件紹介時又は重要事項説明においてご説明いたします。
- ※面積の箇所に表示している N はネット契約(契約面積はオフィス専用部分のみ)、G はグロス契約(契約面積は共用部分を加えた面積)を表しています。
新横浜ファーストビルの設備概要※-は確認中の表記になります。
| 竣工 | 1992年 | 構造・階建て | SRC造 地上9階 地下2階 |
|---|---|---|---|
| 耐震 | 新耐震 | 基準階面積 | 219.66坪 |
| エレベーター | 3基、13人乗り以上 | 駐車場 | 有 |
| ビル使用時間 | 24時間使用可 | エントランス | 平日・土開放 |
| セキュリティ | 機械 | 光ファイバー | 有 |
| 契約種別 | 普通借家契約 | 建替え予定 | - |
| 保証契約 | 有 |
港北区新横浜エリアの賃貸オフィス!

桑澤 修
新横浜エリア。駐車場完備の大型賃貸オフィスビル。新横浜ファーストビルは、横浜市港北区新横浜1丁目、JR横浜線・東海道新幹線の新横浜駅より徒歩11分圏内、横浜市営地下鉄ブルーライン線の新横浜駅より徒歩12分圏内の立地です。竣工は1986年、構造は鉄骨鉄筋コンクリート造地下2階地上8階建て、新耐震基準を満たした物件です。エレベーターは乗用13人乗りを3基設置。エントランスは平日・土曜の開放で、開放時間は平日7:30~19:30、土曜7:30~16:00です。セキュリティは機械警備で、使用時間に制限はございません。62台収容可能な機械式駐車場が完備されています。貸室基準階面積は260.76坪、天井高はゆとりのある2,800mmm。個別空調、OAフロア、光ファイバー導入済です。各フロア共用部に給湯室、男女別トイレがございます。グリッドのデザインのシャープな外観、石張りで落ち着いたエントランスホールは開放感ある雰囲気です。周辺は落ち着いた静かな環境です。新横浜駅より通勤時間帯はシャトルバスが運行しています。駐車場も完備の設備も充実した、新横浜のハイグレード賃貸オフィスビルです。
【周辺ガイド】
新横浜ファーストビルが立地する横浜市港北区新横浜1丁目は、新横浜駅を中心に発展を遂げてきた横浜市内屈指のビジネスエリアです。新横浜駅周辺は、近年の再開発によって大型オフィスビルや複合施設が続々と整備され、横浜市内でも特に近代的な都市景観が広がるエリアとなっています。駅直結の複合施設「キュービックプラザ新横浜」には、レストランやカフェ、書店、医療クリニック、ホテルなど多彩なテナントが揃っており、ビジネスパーソンにとって利便性の高い環境が整っています。また、周辺には「新横浜プリンスホテル」や「新横浜グレイスホテル」などの宿泊施設も充実しており、出張者や来訪者の対応にも困りません。飲食環境においても、新横浜駅周辺にはランチに適した定食屋からカジュアルなカフェ、接待にも使える落ち着いたレストランまで、幅広いジャンルの飲食店が多数存在します。さらに、駅北側には大型の「イオンフードスタイル新横浜店」もあり、食品や日用品の買い物にも便利です。また、新横浜はスポーツ・イベント施設が充実しているのも特徴で、徒歩圏内には横浜アリーナや日産スタジアムといった全国規模のイベントが開催される施設が点在しています。これらの施設は地域の活気を生むと同時に、企業活動においても展示会やセミナー、懇親会などに活用されることも多く、業務の幅を広げる場としても注目されています。ビル周辺は比較的静かなエリアで、騒音や混雑が少なく、落ち着いた雰囲気の中で業務に集中できる環境が整っています。並木道や歩道も広く整備され、緑が多い街並みは、都市にいながらも自然を感じられる心地よさがあります。平日の日中でも騒がしさは控えめで、仕事に集中したい企業にとって非常に理想的な環境といえるでしょう。
【評価】4.0
| 駅からの距離 | 設備 | 耐震性 | エントランス |
|---|
新横浜ファーストビルの周辺地図
「新横浜ファーストビル」に関するお問合せ
![]() |
|
| このページのURL | https://yokohama.kashi-jimusho.com/detail/39078/ |
|---|---|
株式会社サンエスコーポレーション |
|
| 〒103-0027 東京都中央区日本橋2-2-21 日本橋二丁目ビル5階 | |















































































