
LIST EAST BLD.5F 24.70坪関内駅海側 関内駅周辺の賃貸情報
物件番号: 35525
ブルーライン・関内駅に直結の賃貸オフィス!
- 検討リストに追加
| 図面 | 階数 | 坪数 | 保証金/敷金 | 礼金 | 賃料(坪単価) | 共益費(坪単価) | 更新料/ 再契約料 |
償却 | 入居可能日 |
|---|---|---|---|---|---|---|---|---|---|
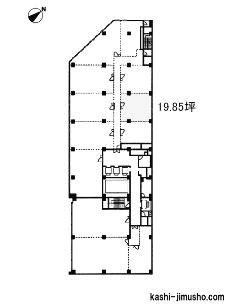
| 5階 | N 24.70坪 (81.65m2) |
(未公開) | 無 |
(未公開)
|
賃料に含む | 無 | 無 | 即日 | |
| 【空調】個別 【床仕様】OAフロア 【トイレ】室外男女別 【天井高】2,500mm | |||||||||
|
窓側に耐震ブレース有 |
|||||||||
※面積の箇所に表示している N はネット契約(契約面積はオフィス専用部分のみ)、G はグロス契約(契約面積は共用部分を加えた面積)を表しています。
LIST EAST BLD.5階24.70坪(横浜市中区尾上町)の周辺MAP
LIST EAST BLD.5階24.70坪(横浜市中区尾上町)の設備
| 竣工 | 1963年 (改修:1996年) | 構造・階建て | SRC造 地上8階 地下2階 |
|---|---|---|---|
| 耐震 | 旧耐震+補強済 or 基準OK | 基準階面積 | 302.11坪 |
| エレベーター | 4基、13人乗り以上 | 駐車場 | 有 |
| ビル使用時間 | 24時間使用可 | エントランス | 全日開放(制限有) |
| セキュリティ | 有人 | 光ファイバー | 有 |
LIST EAST BLD.5階24.70坪(横浜市中区尾上町)のギャラリー
※室内の写真は該当区画ではございません。
LIST EAST BLD.の他フロアの募集リスト
| 図面 | 階数 | 面積 | 賃料(共益費込) (坪単価) |
保証金/敷金 | 礼金 | 入居可能日 | |
|---|---|---|---|---|---|---|---|
| 5階 |
N 38.51坪 (127.31m2) |
(未公開)
|
(未公開) | 無 | 即日 |
|
|
| 6階 |
G 22.86坪 (75.60m2) |
(未公開)
|
(未公開) | 無 | 即日 |
|
|
| 7階 |
G 55.17坪 (182.38m2) |
(未公開)
|
(未公開) | 無 | 即日 |
|
- ※取引態様:媒介
- ※フロア図面と現況が異なる場合は現況を優先いたします。
- ※貸室内部の写真・貸室からの景色に関しては、現在の募集フロアと異なる場合がございます。
- ※保証金/敷金以外の費用については別途消費税が必要になります。
- ※各物件により、別途費用が必要な場合には、物件紹介時又は重要事項説明においてご説明いたします。
- ※面積の箇所に表示している『N』はネット契約(契約面積はオフィス専用部分のみ)『G』はグロス契約(契約面積は共用部分を加えた面積)を表しています。
LIST EAST BLD.の近隣物件リスト
「LIST EAST BLD.」に関するお問合せ
![]() |
|
| このページのURL | https://yokohama.kashi-jimusho.com/detail/35525/264101/ |
|---|---|
株式会社サンエスコーポレーション |
|
| 〒103-0027 東京都中央区日本橋2-2-21 日本橋二丁目ビル5階 | |

































