
KRCビル8F 327.00坪関内駅海側 関内駅周辺の賃貸情報
物件番号: 35383
横浜の人気オフィスエリア!日本大通の大型賃貸オフィス!
- 検討リストに追加
| 図面 | 階数 | 坪数 | 保証金/敷金 | 礼金 | 賃料(坪単価) | 共益費(坪単価) | 更新料/ 再契約料 |
償却 | 入居可能日 |
|---|---|---|---|---|---|---|---|---|---|
| 8階 | G 327.00坪 (1081.00m2) |
12ヶ月 | 無 |
(未公開)
|
981,000円 (3,000円) |
無 | 無 | 即日 | |
|
|
|||||||||
※面積の箇所に表示している N はネット契約(契約面積はオフィス専用部分のみ)、G はグロス契約(契約面積は共用部分を加えた面積)を表しています。
KRCビル8階327.00坪(横浜市中区日本大通)の周辺MAP
KRCビル8階327.00坪(横浜市中区日本大通)の設備
| 竣工 | 1973年 | 構造・階建て | RC造 地上9階 地下2階 |
|---|---|---|---|
| 耐震 | 旧耐震+補強済 or 基準OK | 基準階面積 | 326.24坪 |
| エレベーター | 4基、13人乗り以上 | 駐車場 | 有 |
| ビル使用時間 | 24時間使用可 | エントランス | 平日・土開放 |
| セキュリティ | 機+有人 | 光ファイバー | 有 |
KRCビル8階327.00坪(横浜市中区日本大通)のギャラリー
KRCビルの他フロアの募集リスト
| 図面 | 階数 | 面積 | 賃料(共益費込) (坪単価) |
保証金/敷金 | 礼金 | 入居可能日 | |
|---|---|---|---|---|---|---|---|
| 4階 |
N 64.13坪 (212.00m2) |
(未公開)
|
12ヶ月 | 無 | 相談 |
|
|
| 7階 |
N 23.50坪 (77.70m2) |
(未公開)
|
12ヶ月 | 無 | 相談 |
|
|
| 7階 |
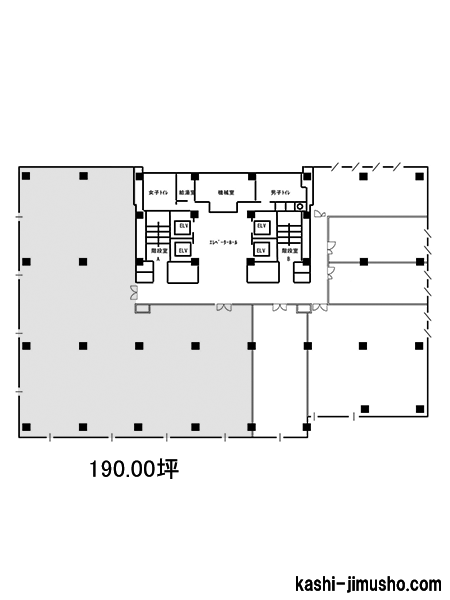
G 190.00坪 (628.10m2) |
(未公開)
|
12ヶ月 | 無 | 相談 |
|
- ※取引態様:媒介
- ※フロア図面と現況が異なる場合は現況を優先いたします。
- ※貸室内部の写真・貸室からの景色に関しては、現在の募集フロアと異なる場合がございます。
- ※保証金/敷金以外の費用については別途消費税が必要になります。
- ※各物件により、別途費用が必要な場合には、物件紹介時又は重要事項説明においてご説明いたします。
- ※面積の箇所に表示している『N』はネット契約(契約面積はオフィス専用部分のみ)『G』はグロス契約(契約面積は共用部分を加えた面積)を表しています。
KRCビルの近隣物件リスト
「KRCビル」に関するお問合せ
![]() |
|
| このページのURL | https://yokohama.kashi-jimusho.com/detail/35383/343942/ |
|---|---|
株式会社サンエスコーポレーション |
|
| 〒103-0027 東京都中央区日本橋2-2-21 日本橋二丁目ビル5階 | |













































