
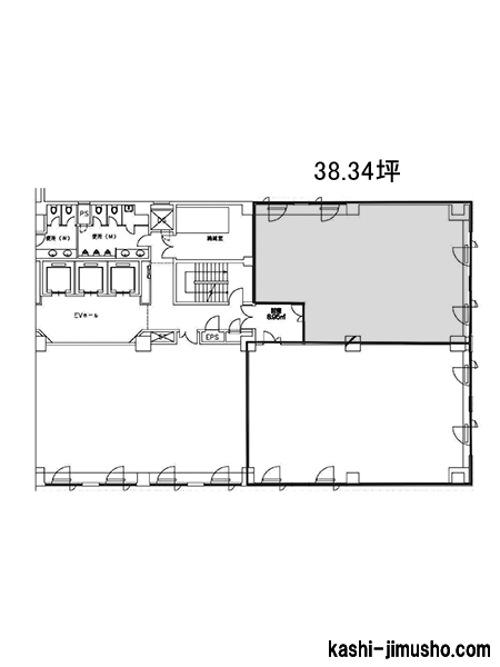
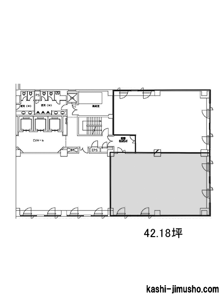
TIMECROSS YOKOHAMA4F 83.40坪関内駅海側 関内駅周辺の賃貸情報
物件番号: 35365
馬車道駅から徒歩2分の賃貸オフィス!
- 検討リストに追加
| 図面 | 階数 | 坪数 | 保証金/敷金 | 礼金 | 賃料(坪単価) | 共益費(坪単価) | 更新料/ 再契約料 |
償却 | 入居可能日 |
|---|---|---|---|---|---|---|---|---|---|
| 4階 | N 83.40坪 (275.70m2) |
12ヶ月 | 無 |
(未公開)
|
賃料に含む | 無 | 無 | 2026/5 | |
| 【空調】セントラル+個別 【床仕様】OAフロア 【トイレ】室外男女別 【天井高】2,400mm | |||||||||
|
|
|||||||||
※面積の箇所に表示している N はネット契約(契約面積はオフィス専用部分のみ)、G はグロス契約(契約面積は共用部分を加えた面積)を表しています。
TIMECROSS YOKOHAMA4階83.40坪(横浜市中区本町)の周辺MAP
TIMECROSS YOKOHAMA4階83.40坪(横浜市中区本町)の設備
| 竣工 | 1986年 (改修:2024年) | 構造・階建て | SRC造 地上9階 地下1階 |
|---|---|---|---|
| 耐震 | 新耐震 | 基準階面積 | 290.21坪 |
| エレベーター | 3基、13人乗り以上 | 駐車場 | 有 |
| ビル使用時間 | 24時間使用可 | エントランス | 平日・土開放 |
| セキュリティ | 機械 | 光ファイバー | 有 |
TIMECROSS YOKOHAMA4階83.40坪(横浜市中区本町)のギャラリー
※室内の写真は該当区画ではございません。
TIMECROSS YOKOHAMAの他フロアの募集リスト
ただいま、募集物件はございません。
TIMECROSS YOKOHAMAの近隣物件リスト
「TIMECROSS YOKOHAMA」に関するお問合せ
![]() |
|
| このページのURL | https://yokohama.kashi-jimusho.com/detail/35365/343895/ |
|---|---|
株式会社サンエスコーポレーション |
|
| 〒103-0027 東京都中央区日本橋2-2-21 日本橋二丁目ビル5階 | |









































